info@navigationhomes.co.nz
Request a Free Brochure Request Now

Luxurious Living In Longview — Lake Hawea

Lake Hawea
$1,089,000
  • 1
  • 2
  • 3
  • 169 m²
Property Details

Lake Hawea Wanaka

$1,089,000

Luxurious Living In Longview

  • 3 bedrooms
  • 2 Bathrooms
  • Open plan Kitchen with Dining/Lounge
  • Media room
  • Designer kitchen with modern Bosch stainless steel appliances
  • Modern wall hung vanities
  • Quality tapware & tiles to bathroom
  • Double Glazed Joinery & upgraded insulation throughout
  • 10 Year Builders Guarantee

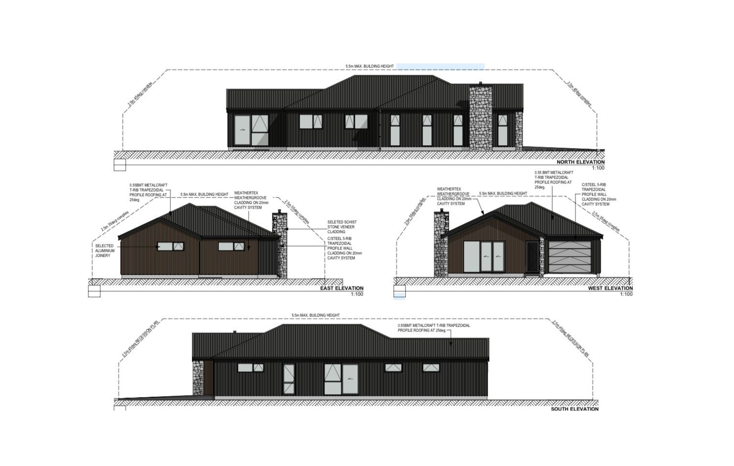
Act quickly to secure your chance to own a new home or investment property in the stunning Southern Lakes region. This property offers the perfect blend of modern luxury and natural beauty. Thoughtfully designed with an open-concept layout that maximises natural light and comfort, with the bonus of a separate media or living room. There is plenty of room for entertaining friends or for the family to have their own space. Comfort all year round is at the heart of this build with a fireplace, heat pump, underfloor heating in the bathrooms and extra levels of insulation (including the garage). The master bedroom includes a walk-in wardrobe with a luxurious tiled bathroom including underfloor heating.

Take advantage of the early opportunity to add your touches by selecting colours, floor coverings, tapware etc to make this home your own.

Immerse yourself in the spectacular landscapes, restaurants and overall living of the Wanaka region.

This property won’t be on the market for long so get in touch asap to discuss this opportunity further
Jeremy  |  M: 0274 104 327  |  E: jeremy@navigationhomes.co.nz  |  www.navigationhomes.co.nz

Visit us on Facebook and see what we do http://www.facebook.com/navigationhomes

Or check out or website https://www.navigationhomes.co.nz

We look forward to hearing from you!

Got your finance YET? See if you qualify here: https://www.newbuild.co.nz/loan-qualifying-calculator

Property Features
  • House
  • 3 bed
  • 2 bath
  • 1 Parking Spaces
  • Section Size 501 m²
  • Floor Area is 169 m²
  • New Construction
  • Garage
Branch Information

Central Otago

Enquire now