info@navigationhomes.co.nz
Request a Free Brochure Request Now

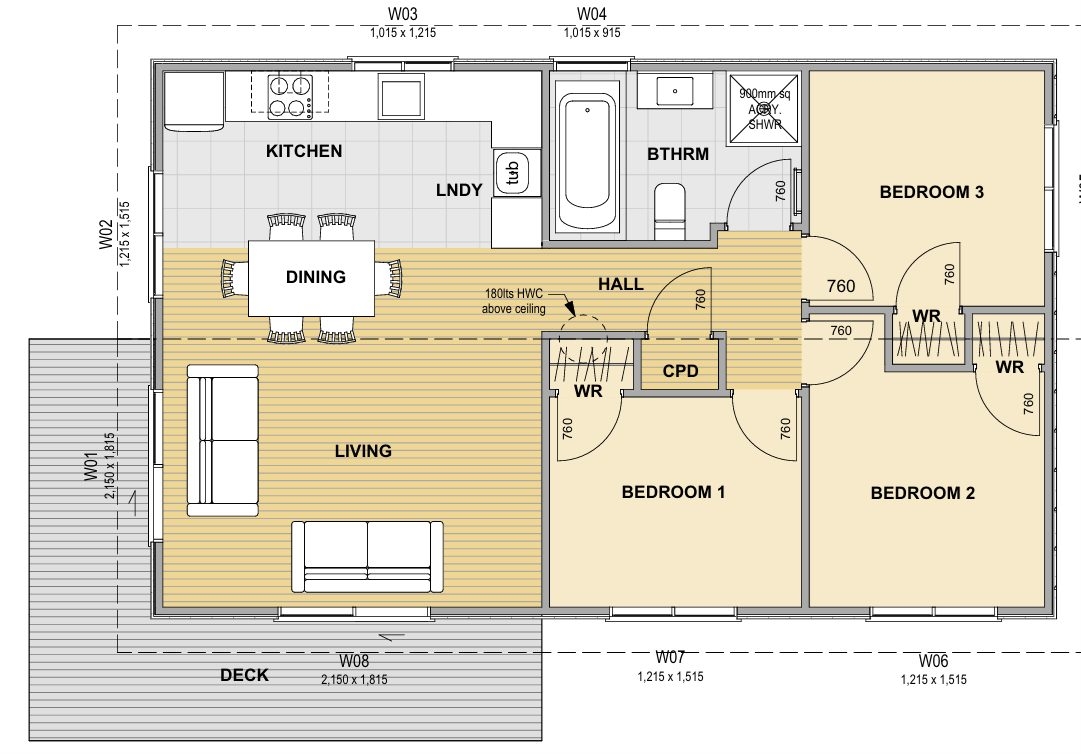
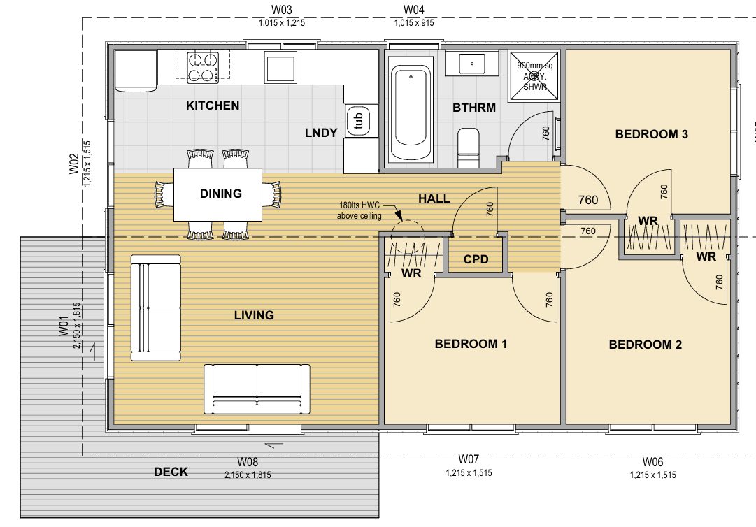
Granny Flat - Backyard Bungalow

$238,000
  • 1
  • 3
  • 70 m²
Property Details

East Auckland

$238,000

Investor Opportunity: Perfect for families needing extra space—whether it’s for teenagers wanting their own place or grandparents you’d like close by. This minor dwelling is a smart and flexible solution. This fixed-price minor dwelling package offers strong rental appeal, long-term capital growth, and peace of mind with a 10-Year Master Build Guarantee.

Key Investment Features:

  • 3 bedrooms – ideal for families or tenants
  • 1 modern bathroom with premium fittings
  • Open-plan kitchen/dining/lounge
  • Designer kitchen with Bosch stainless steel appliances
  • Double-glazed joinery & upgraded insulation – energy efficiency built in
  • Stylish wall-hung vanities, quality tapware & tiled bathrooms

This home will be custom-designed to suit your needs or your target rental market. Whether you’re building to rent or to sell, this package offers flexibility, quality, and value.

PLEASE NOTE HOUSE ONLY NO LAND INCLUDED !

Why Invest in a minor dwelling?

  • Extra income potential – Rent it out for a steady secondary income stream.
  • Increases property value – Adds usable space and boosts overall appeal to future buyers.
  • Flexible living options – Ideal for teenagers, extended family, guests, or even a home office.
  • Cost-effective expansion – More affordable than building a full-sized home or upgrading to a bigger property.

Smaller home options available – pricing varies by size and specifications. We’ll tailor the package to suit your budget and investment goals.

Call us today to find out more about this and our full range of home designs
Kurtis Lilly  |  M: 021 998 739  |  E: kurtis@navigationhomes.co.nz  |  www.navigationhomes.co.nz

We look forward to hearing from you!

If you’re thinking about building, our Book of Ideas is the best place to start. Packed full of inspirational design ideas and a step-by-step guide of the building process. Get your free copy from navigationhomes.co.nz today. Or call us today to find out more about this and our full range of home designs.

Visit us on Facebook and see what we do http://www.facebook.com/navigationhomes

Property Features
  • House
  • 3 bed
  • 1 bath
  • Floor Area is 70 m²
  • New Construction
Branch Information

East Auckland

Enquire now