info@navigationhomes.co.nz
Request a Free Brochure Request Now

6% PA Show Home Investment Opportunity

$NEG
  • 2
  • 2
  • 4
  • 180 m²
Property Details

Lot 90 Iona Subdivision, Havelock North

$NEG

Guaranteed 6% per annum

An opportunity is available to become a show home investor in the new Iona subdivision, located in the prestigious Havelock North, for a renowned nation-wide building franchise, Navigation Homes. If you’re in the market for an investment, look no further!

These opportunities are rare to come by and are typically snatched up quickly by savvy investors.

Investors benefit from a guaranteed 6% annual return, a secure leaseback & lease renewal structure, and ownership of a high-quality residential property in one of the Hawke’s Bay’s most prestigious locations.

This hands-off high-yield investment gives a 12 month lease + 12 month + 12 month renewal options.

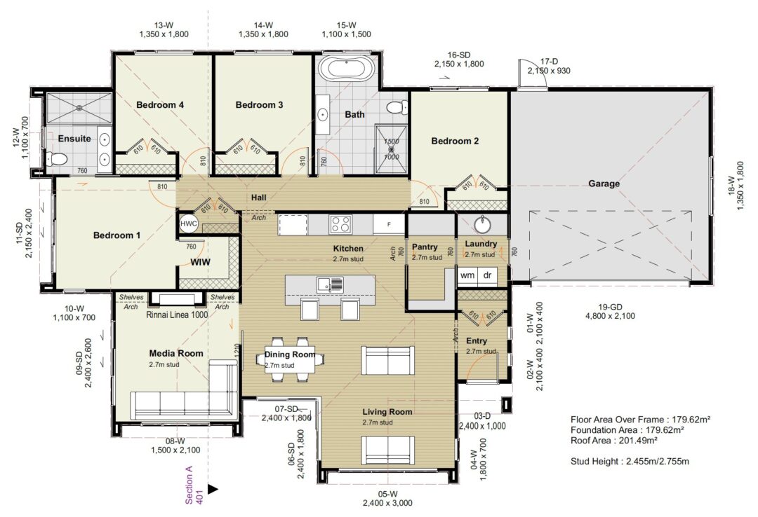
Navigation Homes will construct a premium architectural show home designed to showcase the quality, design innovation and craftsmanship the brand is known for across New Zealand. From the exterior street appeal to the interior floor plan and features, this house has all the ingredients for future capital gains.

This house & floor plan will drop jaws with it’s:

  • Beautiful recessed gables & timber cladding accents
  • High stud height in entry, open plan, media room, laundry, and scullery
  • Feature Joinery
  • Multiple feature interior archways
  • Clever floor plan
  • Gas Fire with feature cladding and arch shelving
  • 2x tiled walk in showers
  • Beautiful designer kitchen
  • Hero scullery & in-house laundry
  • Timber Deck

Call us today to find out more about this and our full range of home designs

Julian  |  M: 027 459 5406  |  E: julian@navigationhomes.co.nz  |  www.navigationhomes.co.nz

We look forward to hearing from you!

If you’re thinking about building, our Book of Ideas is the best place to start. Packed full of inspirational design ideas and a step-by-step guide of the building process. Get your free copy from navigationhomes.co.nz today. Or call us today to find out more about this and our full range of home designs.

Visit us on Facebook and see what we do http://www.facebook.com/navigationhomes

Property Features
  • House
  • 4 bed
  • 2 bath
  • 2 Parking Spaces
  • Section Size 450 m²
  • Floor Area is 180 m²
  • New Construction
  • 2 Garage
Branch Information

Hawkes Bay

Enquire now