info@navigationhomes.co.nz
Request a Free Brochure Request Now

Quality Family Living at Conmara Estate

Conmara Estate
$1,490,000
  • 3
  • 3
  • 4
  • 211 m²
Property Details

Lot 15 Conmara Estate Clevedon

$1,490,000

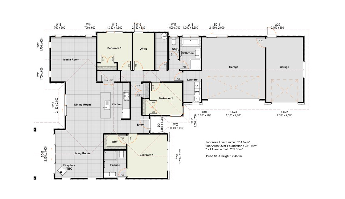
House and Land Package. This is an outstanding design which works for your entire family with plenty of living space and extra space with a three car garage and there is even room for a pool. This architecturally designed home has been specifically designed for this Lot in Conmara Estate, but you are also able to tailor it to suit your individual needs.

  • 4 Bedrooms
  • 3 Bathrooms, plus separate WC
  • Open plan Kitchen and Living
  • Media Room
  • Large Scullery
  • Designer kitchen with modern Bosch stainless steel appliances
  • Quality European tapware and bathrooms throughout this home
  • Double Glazed Joinery and upgrade insulation
  • 10 Year Master Builders Guarantee

Navigation Homes is thrilled to be a build partner with Conmara Estate which is situated right in the hub of Clevedon with an easy walk to cafes, restaurants, Clevedon village, Clevedon Farmers market and the Clevedon sports club. There are also many local Vineyards within a 15-minute drive.

Call us today to find out more about this and our full range of home designs
Virginia  |  M: 027 558 8662  |  E: virginia.henderson@navigationhomes.co.nz  |  www.navigationhomes.co.nz

Get your free copy from navigationhomes.co.nz today. Or call us today to find out more about this and our full range of home designs.

Visit us on Facebook and see what we do http://www.facebook.com/navigationhomes

We look forward to hearing from you!

Got your finance YET? See if you qualify here: https://www.newbuild.co.nz/loan-qualifying-calculator

Property Features
  • House
  • 4 bed
  • 3 bath
  • 3 Parking Spaces
  • Section Size 606 m²
  • Floor Area is 211 m²
  • New Construction
  • 3 Garage
Branch Information

Counties Franklin

  • 0800303207
  • Monday - Friday 8.30am-5.00pm
  • 786 Paerata Road, Paerata
Enquire now